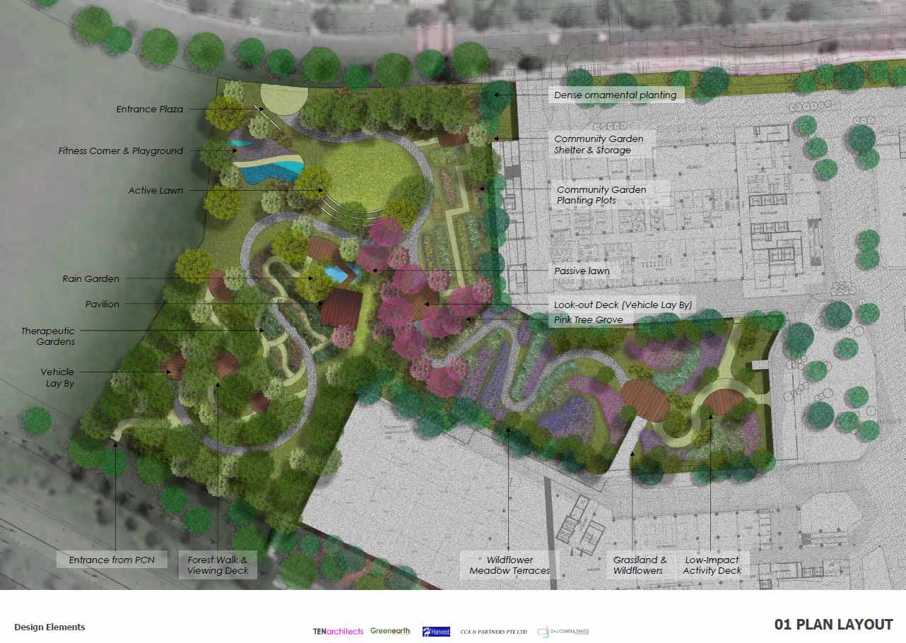
Woodlands Health Campus
Our Projects

Woodlands Health Campus


Location

Woodlands Drive 17
Woodlands, Singapore

Project Type

Healthcare

Architect

TENarchitects
Greenearth

Project Scope

Infrastructures
Engineering Consultant

Project Status

Ongoing